Husleverantör Alpha Hus - kontakta oss - måndag till fredag (kl. 9.00-17.00)

Husleverantör Alpha Hus - kontakta oss - måndag till fredag (kl. 9.00-17.00)

Ring oss på

eller

Näckros 235

Näckros 235

2-plan

Vi bygger ditt arkitektritade hus – inom din budget, i tid, med ett tydligt avtal och garanti.
Alpha Hus

Husbeskrivning

Klassiskt tvåplanshus i modern tappning – ett rymligt och elegant hem med en totalyta på hela 235 m². Huset kombinerar tidlös arkitektur med moderna bekvämligheter för att skapa den perfekta bostaden för den stora familjen. I hjärtat av hemmet finner du en imponerande öppen planlösning där kök och vardagsrum smälter samman i ett centralt placerat rum. De stora fönsterpartierna släpper in rikligt med naturligt ljus och skapar en ljus och inbjudande atmosfär som är idealisk för både vardagsliv och sociala tillställningar. Med tre generösa sovrum finns det gott om plats för alla familjemedlemmar att njuta av sina egna privata utrymmen. Två stilfulla badrum underlättar morgonrutinerna och bidrar till vardagens bekvämlighet. Den rymliga entrén med integrerad tvättstuga gör att hemmet känns välkomnande och funktionellt redan från första stund. På övervåningen väntar ett stort allrum – en flexibel yta som kan anpassas efter dina behov. Det är den perfekta platsen för en extra sällskapsyta, hemmabio eller för barnen att ha som lekområde. Möjligheterna är oändliga! Detta hus är designat för att möta den moderna familjens krav på både stil och funktion. Varje detalj är noggrant genomtänkt för att skapa en harmonisk och bekväm livsstil.

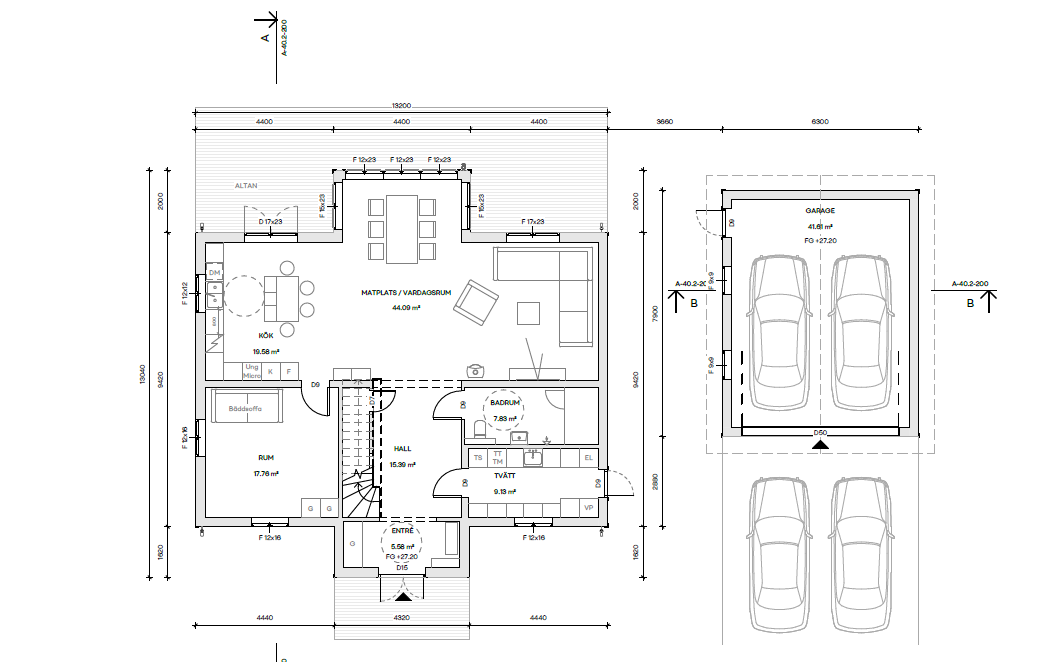
Planlösning entrévåning
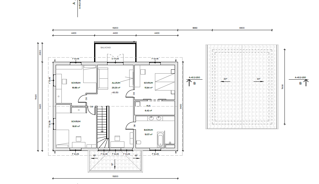
Planlösning övervåning

Värderingsstandard

  • En unik husdesign som ni tar fram tillsammans med vår arkitekt, utifrån era behov och önskemål
  • Komplett isolerad betongplatta på mark med ingjuten golvvärme. Markarbete i standardomfattning ingår.
  • Ytter- och innerväggar av högkvalitet, isolerade med mineralull och beklädda med gipsskivor
  • Prefabricerat takkonstruktion med yttertakbeklädnad och komplett isolering
  • Komplett VVS-, el- och ventilationssystem inkl. frånluftsvärmepump
  • Invändig finish, Inkl. parkettgolv, kakel och klinker samt ett kvalitetskök från Ballingslöv.
  • Fönster och dörrar från Svenska Fönster och Swedoor
  • Ławy fundamentowe
  • Strop gęstożebrowy/Wiązary prefabrykowane
  • Dachówka betonowa falista
  • Ogrzewanie elektryczne
  • Ocieplenie dachu: Piana PUR
  • Ocieplenie ścian zewn.: Styropian Grafitowy
  • Rekuperacja

Värderingen inkluderar inte)

  • Omfattande markarbeten utöver standardgrundläggning
  • Anslutningsavgifter (t.ex. vatten, el och avlopp)
  • Elementów ozdobnych poza obrysem budynku np. ramy żelbetowe, pergole drewniane
  • Tarasów na gruncie

Teknisk information

Typ av hus:
2-plan
Antal sovrum:
4
Antal badrum:
2
Boarea:
235 m²
Ovanstående erbjudande är endast avsett för informationsändamål och utgör inte ett bindande anbud enligt 1 § avtalslagen (1915:218).

Populära projekt

1-plan
Boarea 189 m²
Byggarea 238 m²
Brutto byggkostnad: 0 SEK
1-plan
Boarea 163 m²
Byggarea 187 m²
Brutto byggkostnad: 0 SEK
2-plan
Boarea 173 m²
Byggarea 101 m²
Brutto byggkostnad: 0 SEK
1,5-plan
Boarea 188 m²
Byggarea 139 m²
Brutto byggkostnad: 0 SEK

Byggande av energieffektiva hus

Tack vare användningen av modern teknik och moderna material kännetecknas dessa hus av låg energiförbrukning och en positiv inverkan på miljön. Välj energieffektiva lösningar och njut av lägre värmeräkningar!

Fråga om pris

Näckros 235

* Obligatoriska fält