Husleverantör Alpha Hus - kontakta oss - måndag till fredag (kl. 9.00-17.00)

Husleverantör Alpha Hus - kontakta oss - måndag till fredag (kl. 9.00-17.00)

Ring oss på

eller

Lavendel 158

Lavendel 158

Vi bygger ditt arkitektritade hus – inom din budget, i tid, med ett tydligt avtal och garanti.
Alpha Hus

Husbeskrivning

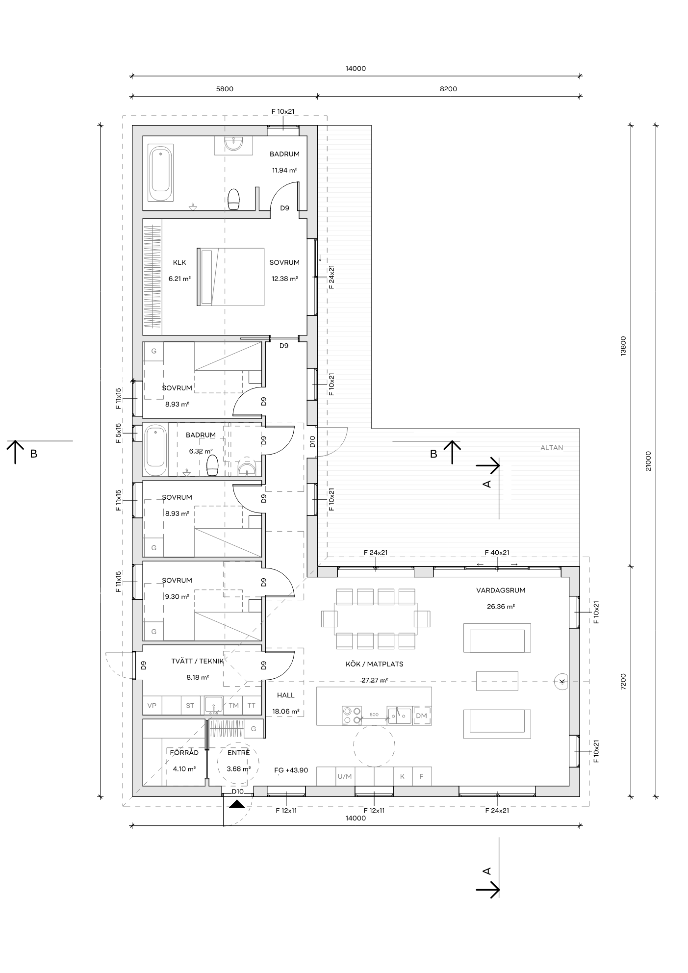
Husmodellen Lavendel är ett modernt och stilrent hem med en genomtänkt planlösning i L-form, vilket skapar en harmonisk kombination av öppna ytor och privata rum. Med en boyta på 158 m² erbjuder huset gott om plats för både sociala sammankomster och avskildhet.

De generösa fönsterpartierna släpper in rikligt med naturligt ljus och skapar en ljus och inbjudande atmosfär. Vardagsrummet och köket ligger i en öppen planlösning, vilket skapar en luftig och social miljö där matlagning och umgänge smälter samman. Den L-formade designen ger en naturlig avgränsning mellan de gemensamma ytorna och sovrumsdelen, vilket bidrar till en lugn och privat boendemiljö.

Den genomtänkta planlösningen erbjuder flexibla ytor för både umgänge och avskildhet, med gott om förvaring och smart disponerade rum för att maximera komfort och funktionalitet i vardagen.

Planlösning entrévåning

Värderingsstandard

  • En unik husdesign som ni tar fram tillsammans med vår arkitekt, utifrån era behov och önskemål
  • Komplett isolerad betongplatta på mark med ingjuten golvvärme. Markarbete i standardomfattning ingår.
  • Ytter- och innerväggar av högkvalitet, isolerade med mineralull och beklädda med gipsskivor
  • Prefabricerat takkonstruktion med yttertakbeklädnad och komplett isolering
  • Komplett VVS-, el- och ventilationssystem inkl. frånluftsvärmepump
  • Invändig finish, Inkl. parkettgolv, kakel och klinker samt ett kvalitetskök från Ballingslöv.
  • Fönster och dörrar från Svenska Fönster och Swedoor

Värderingen inkluderar inte)

  • Omfattande markarbeten utöver standardgrundläggning
  • Anslutningsavgifter (t.ex. vatten, el och avlopp)

Teknisk information

Typ av hus:
1-plan
Antal badrum:
2
Boarea:
158 m²
Byggarea:
181 m²
Ovanstående erbjudande är endast avsett för informationsändamål och utgör inte ett bindande anbud enligt 1 § avtalslagen (1915:218).

Populära projekt

1-plan
Boarea 189 m²
Byggarea 238 m²
Brutto byggkostnad: 0 SEK
1,5-plan
Boarea 202 m²
Byggarea 198 m²
Brutto byggkostnad: 0 SEK
1-plan
Boarea 87 m²
Byggarea 108 m²
Brutto byggkostnad: 0 SEK
1,5-plan
Boarea 188 m²
Byggarea 139 m²
Brutto byggkostnad: 0 SEK

Byggande av energieffektiva hus

Tack vare användningen av modern teknik och moderna material kännetecknas dessa hus av låg energiförbrukning och en positiv inverkan på miljön. Välj energieffektiva lösningar och njut av lägre värmeräkningar!

Fråga om pris

Lavendel 158

* Obligatoriska fält