Husleverantör Alpha Hus - kontakta oss - måndag till fredag (kl. 9.00-17.00)

Husleverantör Alpha Hus - kontakta oss - måndag till fredag (kl. 9.00-17.00)

Ring oss på

eller

Kaprifol 175

Kaprifol 175

1-plan

Vi bygger ditt arkitektritade hus – inom din budget, i tid, med ett tydligt avtal och garanti.
Alpha Hus

Husbeskrivning

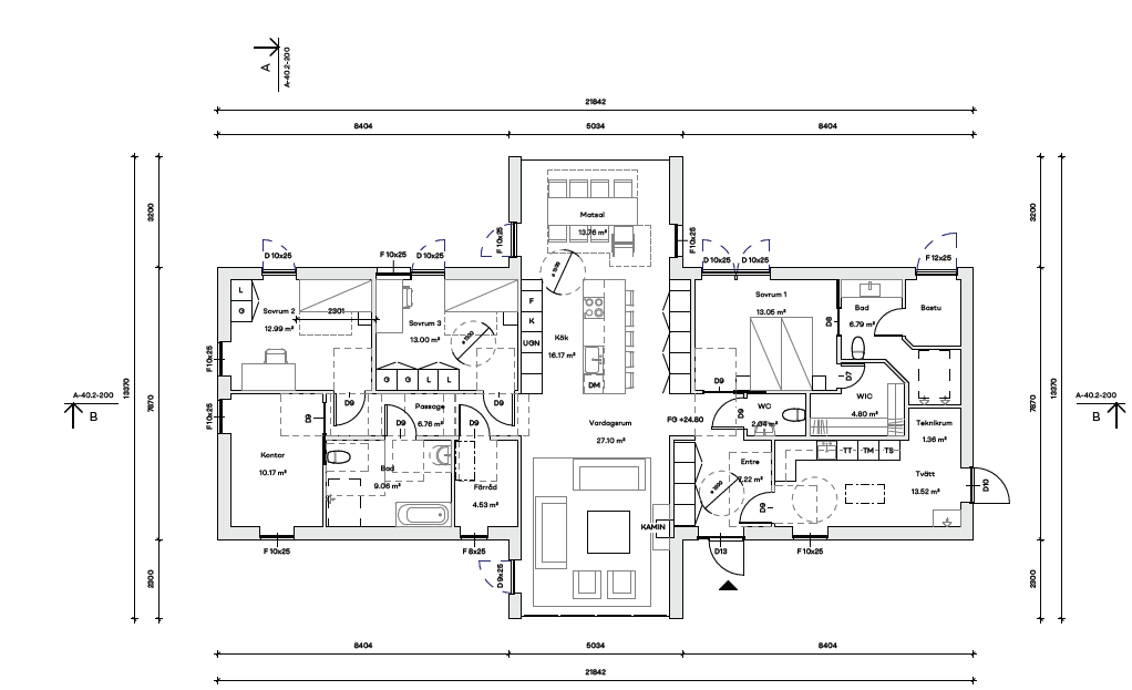
Modernt rymligt och imponerande enplanshus på 174 m²􀯗–􀯗en arkitektonisk pärla som förenar modern design med funktionell elegans. Huset är unikt utformat, vilket ger en dynamisk och spännande planlösning. I hjärtat av hemmet finner du det centralt placerade köket, som knyter samman matsalen på ena sidan och vardagsrummet på den andra. Den öppna planlösningen med ryggåstak skapar en ljus och luftig atmosfär, där stora fönster sträcker sig ända upp till taknocken och släpper in rikligt med naturligt ljus från båda sidor. Till höger om de sociala ytorna ligger det lyxiga huvudsovrummet, komplett med en rymlig walk-in closet och ett elegant badrum utrustat med bastu för ultimata avkopplingsstunder. Här finns även en mindre toalett och ett generöst utrymme för klädvård, vilket underlättar vardagens bestyr. Den stora entrén ansluter smidigt till de sociala ytorna och välkomnar dig hem med stil. På motsatt sida av de sociala ytorna hittar du två välplanerade sovrum samt ett arbetsrum som enkelt kan omvandlas till ett extra sovrum vid behov. Här finns också ett ytterligare badrum och ett mindre förråd, vilket ger praktiska förvaringslösningar för hela familjen. Husets exteriör pryds av en stilren modern träfasad som harmoniserar med omgivningen, medan det vackra plåttaket skänker en elegant och tidlös känsla. Den genomtänkta designen och de högkvalitativa materialen gör detta hem till en sann fröjd för ögat och en plats där du kan njuta av livets bästa stunder. Låt detta fantastiska enplanshus bli ditt drömhem􀯗–􀯗där arkitektur möter funktion på bästa möjliga sätt.

Planlösning entrévåning

Värderingsstandard

  • En unik husdesign som ni tar fram tillsammans med vår arkitekt, utifrån era behov och önskemål
  • Komplett isolerad betongplatta på mark med ingjuten golvvärme. Markarbete i standardomfattning ingår.
  • Ytter- och innerväggar av högkvalitet, isolerade med mineralull och beklädda med gipsskivor
  • Prefabricerat takkonstruktion med yttertakbeklädnad och komplett isolering
  • Komplett VVS-, el- och ventilationssystem inkl. frånluftsvärmepump
  • Invändig finish, Inkl. parkettgolv, kakel och klinker samt ett kvalitetskök från Ballingslöv.
  • Fönster och dörrar från Svenska Fönster och Swedoor
  • Ławy fundamentowe
  • Strop gęstożebrowy/Wiązary prefabrykowane
  • Dachówka betonowa falista
  • Ogrzewanie elektryczne
  • Ocieplenie dachu: Piana PUR
  • Ocieplenie ścian zewn.: Styropian Grafitowy
  • Rekuperacja

Värderingen inkluderar inte)

  • Omfattande markarbeten utöver standardgrundläggning
  • Anslutningsavgifter (t.ex. vatten, el och avlopp)
  • Elementów ozdobnych poza obrysem budynku np. ramy żelbetowe, pergole drewniane
  • Tarasów na gruncie
  • Komina do kominka

Teknisk information

Typ av hus:
1-plan
Antal sovrum:
3
Antal badrum:
2
Boarea:
175 m²
Byggarea:
200 m²
Ovanstående erbjudande är endast avsett för informationsändamål och utgör inte ett bindande anbud enligt 1 § avtalslagen (1915:218).

Populära projekt

1-plan
Boarea 87 m²
Byggarea 108 m²
Brutto byggkostnad: 0 SEK
1,5-plan
Boarea 188 m²
Byggarea 139 m²
Brutto byggkostnad: 0 SEK
1-plan
Boarea 163 m²
Byggarea 187 m²
Brutto byggkostnad: 0 SEK
1,5-plan
Boarea 202 m²
Byggarea 198 m²
Brutto byggkostnad: 0 SEK

Byggande av energieffektiva hus

Tack vare användningen av modern teknik och moderna material kännetecknas dessa hus av låg energiförbrukning och en positiv inverkan på miljön. Välj energieffektiva lösningar och njut av lägre värmeräkningar!

Fråga om pris

Kaprifol 175

* Obligatoriska fält