Husleverantör Alpha Hus - kontakta oss - måndag till fredag (kl. 9.00-17.00)

Husleverantör Alpha Hus - kontakta oss - måndag till fredag (kl. 9.00-17.00)

Ring oss på

eller

Dahlia 202

Dahlia 202

Dahlia 202

Vi bygger ditt arkitektritade hus – inom din budget, i tid, med ett tydligt avtal och garanti.
Alpha Hus

Husbeskrivning

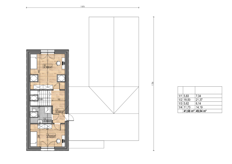
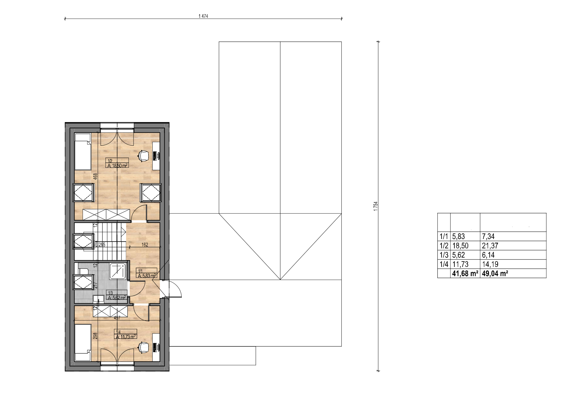
Dahlia är ett modernt, arkitektritat hus med en stilren och tidlös design. Med en boyta på totalt 202m², fördelat på 153m² på bottenplan och 49m² på överplan, erbjuder huset en rymlig och genomtänkt planlösning.

De stora fönsterpartierna skapar en ljus och öppen atmosfär, där vardagsrummet blir en inbjudande samlingsplats med kontakt mot matplatsen. Köket är avskilt från vardagsrummet, vilket skapar en mer privat och funktionell yta för matlagning. Övervåningen rymmer extra boyta för exempelvis sovrum, arbetsrum eller allrum, vilket ger flexibilitet för dina behov.

Exteriören präglas av en elegant kombination av vitputsad fasad och stilfulla inslag av tegel, vilket ger huset en modern men samtidigt tidlös karaktär. Den genomtänkta materialmixen ger ett exklusivt uttryck.

Planlösning entrévåning
Planlösning övervåning

Värderingsstandard

  • En unik husdesign som ni tar fram tillsammans med vår arkitekt, utifrån era behov och önskemål
  • Komplett isolerad betongplatta på mark med ingjuten golvvärme. Markarbete i standardomfattning ingår.
  • Ytter- och innerväggar av högkvalitet, isolerade med mineralull och beklädda med gipsskivor
  • Prefabricerat takkonstruktion med yttertakbeklädnad och komplett isolering
  • Komplett VVS-, el- och ventilationssystem inkl. frånluftsvärmepump
  • Invändig finish, Inkl. parkettgolv, kakel och klinker samt ett kvalitetskök från Ballingslöv.
  • Fönster och dörrar från Svenska Fönster och Swedoor

Värderingen inkluderar inte)

  • Omfattande markarbeten utöver standardgrundläggning
  • Anslutningsavgifter (t.ex. vatten, el och avlopp)

Teknisk information

Typ av hus:
1,5-plan
Antal sovrum:
4
Antal badrum:
3
Boarea:
202 m²
Byggarea:
198 m²
Ovanstående erbjudande är endast avsett för informationsändamål och utgör inte ett bindande anbud enligt 1 § avtalslagen (1915:218).

Populära projekt

1,5-plan
Boarea 188 m²
Byggarea 139 m²
Brutto byggkostnad: 0 SEK
1-plan
Boarea 87 m²
Byggarea 108 m²
Brutto byggkostnad: 0 SEK
2-plan
Boarea 173 m²
Byggarea 101 m²
Brutto byggkostnad: 0 SEK
1-plan
Boarea 163 m²
Byggarea 187 m²
Brutto byggkostnad: 0 SEK

Byggande av energieffektiva hus

Tack vare användningen av modern teknik och moderna material kännetecknas dessa hus av låg energiförbrukning och en positiv inverkan på miljön. Välj energieffektiva lösningar och njut av lägre värmeräkningar!

Fråga om pris

Dahlia 202

* Obligatoriska fält