Husleverantör Alpha Hus - kontakta oss - måndag till fredag (kl. 9.00-17.00)

Husleverantör Alpha Hus - kontakta oss - måndag till fredag (kl. 9.00-17.00)

Ring oss på

eller

Amadeus 270

Amadeus 270

Vi bygger ditt arkitektritade hus – inom din budget, i tid, med ett tydligt avtal och garanti.
Alpha Hus

Husbeskrivning

Amadeus är ett modernt och exklusivt hus med en arkitektur som kombinerar rena linjer och stora glaspartier. Den genomtänkta L-formade designen skapar både öppenhet och avskildhet, där ute- och innemiljö flyter samman på ett harmoniskt sätt.

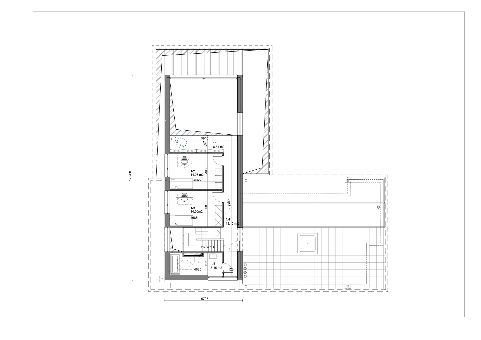
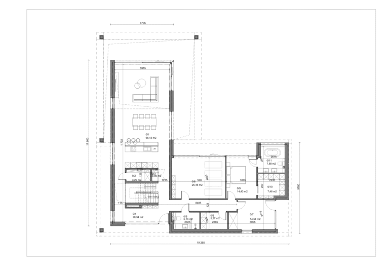
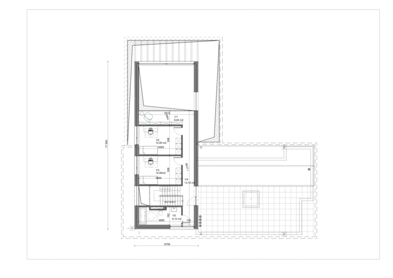
På entréplanet finns generösa sociala ytor med kök, matplats och vardagsrum i en öppen planlösning perfekt för både vardagsliv och umgänge. Den övre våningen erbjuder privata sovrum med utsikt, samt plats för både kontor och relax.

Amadeus är huset för dig som värdesätter design, ljus och funktion i perfekt balans ett hem som känns lika tidlöst som modernt.

Planlösning entrévåning
Planlösning övervåning

Värderingsstandard

  • Komplett isolerad betongplatta på mark med ingjuten golvvärme. Markarbete i standardomfattning ingår.
  • Ytter- och innerväggar av högkvalitet , isolerade med mineralull och beklädda med gipsskivor
  • Prefabricerat takkonstruktion med yttertakbeklädnad och isolering
  • Komplett VVS-, el- och ventilationssystem inkl. frånluftsvärmepump
  • Invändig finish , Inkl. parkettgolv, kakel och klinker samt ett kvalitetskök från Ballingslöv.
  • Fönster och dörrar från Svenska Fönster och Swedoor

Värderingen inkluderar inte)

  • Omfattande markarbeten utöver standardgrundläggning
  • Anslutningsavgifter (t.ex. vatten, el och avlopp)

Teknisk information

Typ av hus:
2-plan
Boarea:
270 m²
Byggarea:
225 m²
Ovanstående erbjudande är endast avsett för informationsändamål och utgör inte ett bindande anbud enligt 1 § avtalslagen (1915:218).

Populära projekt

1-plan
Boarea 163 m²
Byggarea 187 m²
Brutto byggkostnad: 0 SEK
1,5-plan
Boarea 188 m²
Byggarea 139 m²
Brutto byggkostnad: 0 SEK
1-plan
Boarea 189 m²
Byggarea 238 m²
Brutto byggkostnad: 0 SEK
2-plan
Boarea 235 m²
Brutto byggkostnad: 0 SEK

Byggande av energieffektiva hus

Tack vare användningen av modern teknik och moderna material kännetecknas dessa hus av låg energiförbrukning och en positiv inverkan på miljön. Välj energieffektiva lösningar och njut av lägre värmeräkningar!

Fråga om pris

Amadeus 270

* Obligatoriska fält