Husleverantör Alpha Hus - kontakta oss - måndag till fredag (kl. 9.00-17.00)

Husleverantör Alpha Hus - kontakta oss - måndag till fredag (kl. 9.00-17.00)

Ring oss på

eller

Hassel 152

Hassel 152

Vi bygger ditt arkitektritade hus – inom din budget, i tid, med ett tydligt avtal och garanti.
Alpha Hus

Husbeskrivning

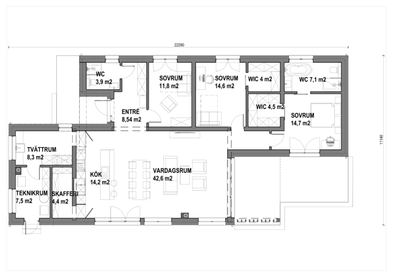
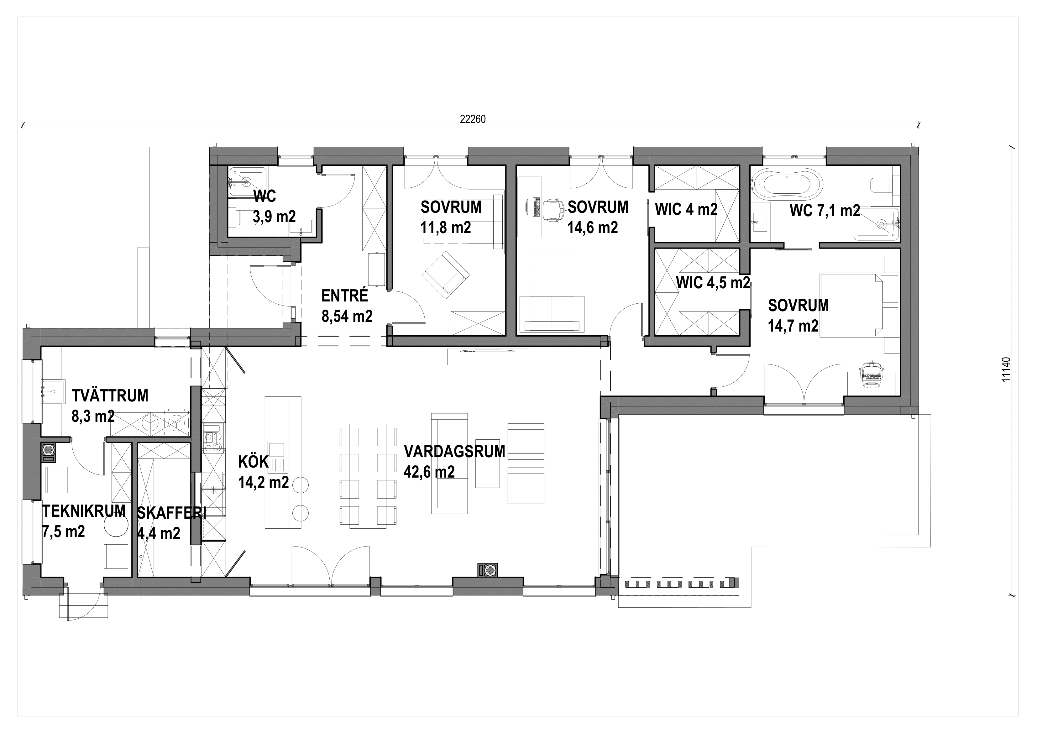
Hassel 152 är ett unikt hem som förenar det bästa av två världar – den klassiska ladhusdesignens tidlösa charm, och en modern, funktionell planlösning anpassad för dagens livsstil. Med en generös byggarea på 229 m² och boarea på 152 m² är detta huset för dig som söker karaktär utan att kompromissa på bekvämlighet.

Husets exteriör hämtar inspiration från traditionella lador, med sin långsmala form, höga gavelväggar och stående träpanel – men med en uppdaterad arkitektur där stora fönsterpartier, rena linjer och modern färgsättning ger ett stilrent och samtida uttryck.

Invändigt möts du av en öppen planlösning mellan kök och vardagsrum, där ljuset flödar in och skapar en social kärna i hemmet. Ett rymligt skafferi ger köket extra funktion och förvaring, medan tvättrum och teknikrum är smart placerade i direkt anslutning till groventrén – perfekt för en aktiv vardag.

Huset rymmer tre välplanerade sovrum, två badrum och gott om förvaringsutrymmen. Planlösningen är både praktisk och flexibel – här finns plats för både familjeliv, gäster och hemmakontor.

Planlösning entrévåning

Värderingsstandard

  • En unik husdesign som ni tar fram tillsammans med vår arkitekt, utifrån era behov och önskemål
  • Komplett isolerad betongplatta på mark med ingjuten golvvärme. Markarbete i standardomfattning ingår.
  • Ytter- och innerväggar av högkvalitet, isolerade med mineralull och beklädda med gipsskivor
  • Prefabricerat takkonstruktion med yttertakbeklädnad och komplett isolering
  • Komplett VVS-, el- och ventilationssystem inkl. frånluftsvärmepump
  • Invändig finish, Inkl. parkettgolv, kakel och klinker samt ett kvalitetskök från Ballingslöv.
  • Fönster och dörrar från Svenska Fönster och Swedoor

Värderingen inkluderar inte)

  • Omfattande markarbeten utöver standardgrundläggning
  • Anslutningsavgifter (t.ex. vatten, el och avlopp)

Teknisk information

Typ av hus:
1-plan
Antal sovrum:
3
Antal badrum:
2
Boarea:
152 m²
Byggarea:
229 m²
Ovanstående erbjudande är endast avsett för informationsändamål och utgör inte ett bindande anbud enligt 1 § avtalslagen (1915:218).

Populära projekt

2-plan
Boarea 235 m²
Brutto byggkostnad: 0 SEK
1-plan
Boarea 136 m²
Byggarea 187 m²
Brutto byggkostnad: 0 SEK
1-plan
Boarea 189 m²
Byggarea 238 m²
Brutto byggkostnad: 0 SEK
1-plan
Boarea 163 m²
Byggarea 187 m²
Brutto byggkostnad: 0 SEK

Byggande av energieffektiva hus

Tack vare användningen av modern teknik och moderna material kännetecknas dessa hus av låg energiförbrukning och en positiv inverkan på miljön. Välj energieffektiva lösningar och njut av lägre värmeräkningar!

Fråga om pris

Hassel 152

* Obligatoriska fält